Bureau d"études BET ouverture de mur

DIAGNOSTIC MURS PORTEURS ET NOTE DE CALCUL POUR OUVERTURE

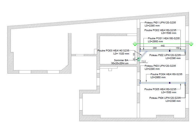
Pour faire suite à la demande du maître d'ouvrage, le BET AlloMarcel a été mandaté dans le cadre des travaux de rénovation pour évaluer la faisabilité technique d'ouvrir cinq cloisons, ainsi qu'un un mur de cheminée.

Une seule cloison a été considérée comme porteuse par le BET. Une note de calcul a été produite pour cette ouverture de mur. Les travaux ont été réalisés par AlloMarcel Travaux.

Localisation
Paris 6
Superficie
110
Prix
1?5K€
Date
Eté 2024
Démarrer votre projet